2009年11月6日 星期五

10/10 大金空調「鳥」事修復記

客廳空調.jpg 

前陣子就發現家裡的冷氣有時候打開後,面板會出現閃綠燈的狀況(正常應該是綠燈恆亮),然後冷氣出不來。

換了遙控電池重複開機一樣無效,可是第二天再試試看,卻偏偏又恢復正常。所以也一直沒有放在心上,沒想到要報修。

最近又發生一次,剛好是我在書房趕東西的電腦認證與應用學習時候,這就讓我很火大了。

 

第二天到辦公室等稍空時,馬上打電話給大金的服務專線,客服小姐很客氣的跟我對冷氣機型與問題。

什麼?機型?我在辦公室耶!哪來的型號?

不過我馬上就想到我的部落格上有很清楚的紀錄,馬上請客服小姐等一下,我馬上查。

果然,在如果可以重來之電器篇-1.大金空調就詳細記錄我家室內機及室外機的電子、電機、電信應用軟體型號。


維修師傅也很快的跟我聯絡,漫畫CD由於我現在工作真的走不開,只好約星期六讓肥肥安接待了。

來維修的前一天,冷氣師傅再次來電跟我確認機器狀況,要我用遙控器進入工程模式,告訴他故障代碼,結果發現不是只有書房有問題,而是一對四的四台室內機都出現"UH"的故障代碼。

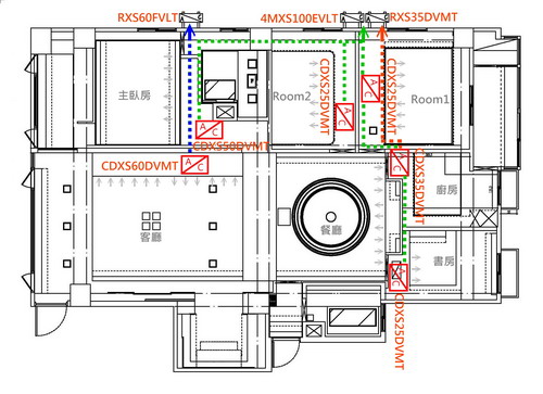
由於維修當天我不在家,為了避免肥肥安一問三不知,我特別準備了我之前自己畫的空調型號配置圖。

空調圖(B&W)_調整大小 .jpg 

今天看起來還真是佩服自己當初花的迪士尼DVD功夫,室內外主機型號清清楚楚,連管線怎麼走都畫出來了。

我想有了這張圖應該就妥當了。


結果晚上回到家,1017更新肥肥安告訴我,師傅檢查後發現是線路的問題,因為是四台室內機都出現同樣的錯誤代碼,所以應該是室外主機的問題,更換機板後,也找出造成故障的原兇,就是它。

鳥巢.jpg 

原來是有小鳥在我們家室外機築巢了

基本上我是不在意小鳥這麼喜歡我家,在我家的室外機築巢,可是搞到冷氣故障就不行了。只好請他另尋地方了,冬天就快到了,希望牠動作快點才好。

沒有留言:

張貼留言